Heavy Brewing Courtyard

*

Heavy Brewing Courtyard *

Where | Omaha, NE

When | 2023

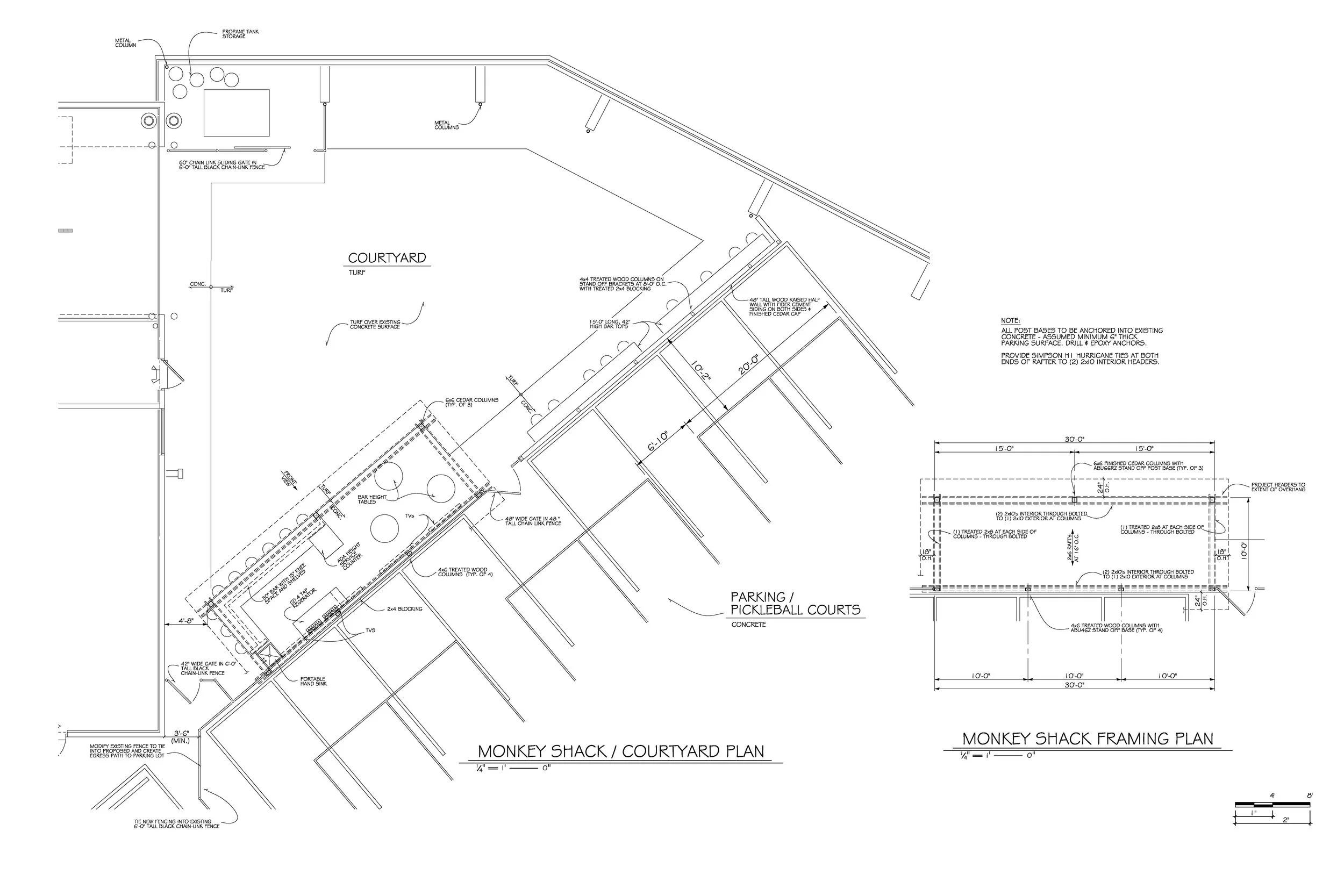
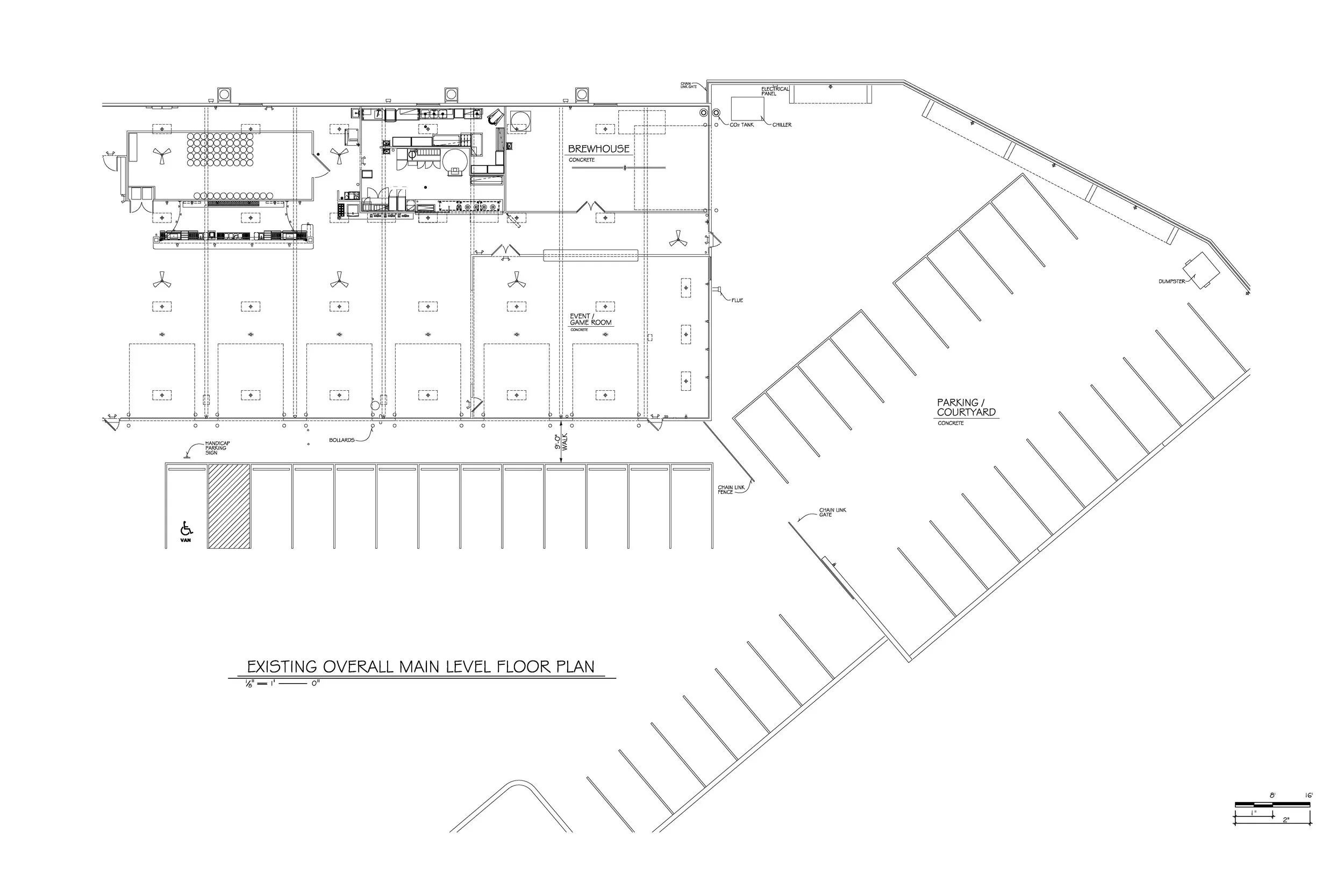
This project envisions the transformation of the restaurant and brewery’s outdoor courtyard and parking area into a vibrant, multi-use entertainment and bar space. Designed to enhance the guest experience, the reimagined venue will feature an expansive open turf area, a fully equipped sports bar, and regulation-size pickleball courts, creating a dynamic destination for socializing, recreation, and relaxation.

At the heart of the project is the Monkey Shack, a distinctive sports bar that blends rustic charm with industrial aesthetics. Built with traditional stick framing, the structure highlights exposed natural wood for warmth and character, while durable metal siding and roofing provide longevity and a cohesive connection to the parent building’s architectural style. The result is a welcoming yet rugged ambiance that complements the brewery’s laid-back atmosphere.

The open turf space serves as a versatile gathering area, ideal for lawn games, casual seating, and flexible programming. Adjacent to the bar and turf area, are the addition of regulation-size pickleball courts which offer a dedicated space for both casual and competitive play. 

This transformation will establish a dynamic, social, and entertainment-driven outdoor venue, expanding the brewery’s appeal while maintaining its signature relaxed and welcoming atmosphere. By integrating recreation, social engagement, and high-quality design, the project aims to create an unforgettable destination for both new and returning guests.