The SL-748 ADU

*

The SL-748 ADU *

Where | Omaha

When | 2024

Awards | AARP “An ADU for U” Accessory Dwelling Unit Design Competition Award Winner

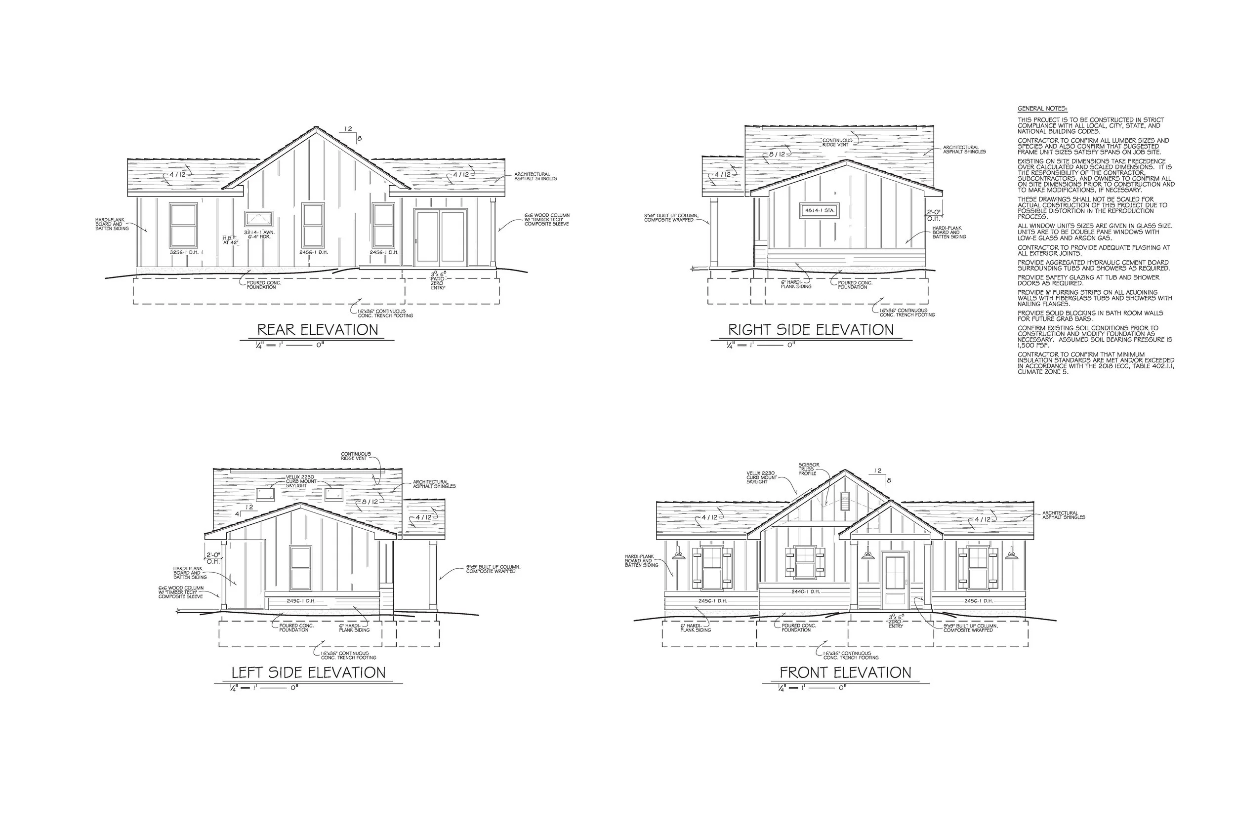
The SL-748 is a compact, 748-square-foot accessory dwelling unit (ADU) designed to promote aging in place while complying with Omaha's residential zoning codes. Its efficient layout provides a functional and accessible living space, making it an ideal solution for seniors, family members, or caregivers. The design features age-friendly elements, such as zero-entry doors, a roll-in shower, and 5-foot wheelchair turnarounds, ensuring a comfortable and independent living experience. Additionally, its adaptable design allows for future expansions or modifications to meet evolving needs while maintaining a modest footprint.

Built with sustainability in mind, the SL-748 incorporates green building practices such as high-efficiency appliances, LED lighting, a split HVAC system, optional solar panels, and stormwater collection. High R-value insulation, double-pane Low-E windows, and the option for structurally insulated panel systems (SIPS) contribute to the unit's energy efficiency and cost savings. Pre-built panelized wall sections and roof trusses reduce construction costs and speed up the building process, making the SL-748 a more affordable option for homeowners.

The ADU’s modern farmhouse design blends rustic charm with contemporary style, featuring board and batten siding, wood accents on the porch columns, shutters, and door, creating an inviting atmosphere. Its flexible layout can be rotated or reversed to accommodate different lot configurations, and its thoughtful material choices ensure it integrates seamlessly with both the primary residence and the surrounding neighborhood.

The SL-748 offers an affordable, sustainable, and versatile housing solution for those looking to downsize, house family members, or generate rental income, all while maintaining independence and a high quality of life.