The SL-602 ADU

*

The SL-602 ADU *

Where | Omaha

When | 2024

Awards | AARP “An ADU for U” Accessory Dwelling Unit Design Competition Award Winner

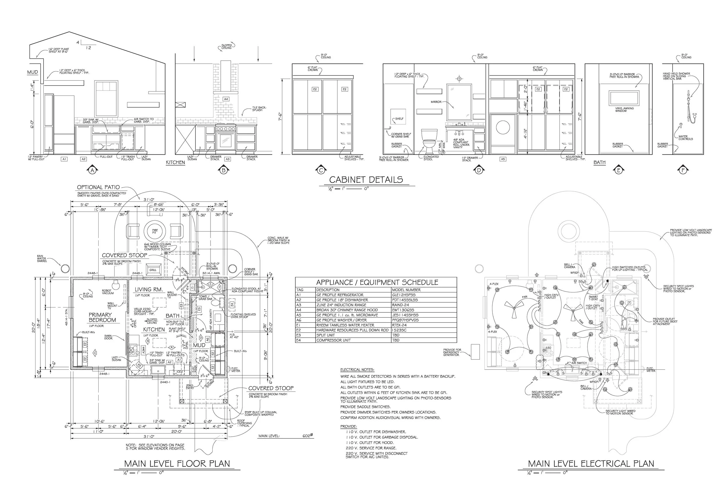
The SL-602 is an efficient and affordable 602-square-foot accessory dwelling unit (ADU) designed to support aging in place, all while adhering to Omaha's residential zoning codes. Despite its compact size, it offers a highly functional, accessible layout perfect for seniors, family members, or caregivers. The design includes age-friendly features such as zero-entry doors, a roll-in shower, and 5-foot wheelchair turnarounds, making it a practical and comfortable space for independent living. Its adaptable nature also allows for future expansions or modifications to meet changing needs, while still maintaining a modest footprint.

The SL-602 is built with sustainable construction methods, incorporating green building practices like high-efficiency appliances, LED lighting, a split HVAC system, optional solar panels, and stormwater collection. The use of high R-value insulation, double-pane Low-E glass windows, and compatibility with structurally insulated panel systems (SIPS) ensures that this ADU remains energy-efficient and cost-effective. Additionally, pre-built panelized wall sections and roof trusses reduce construction costs and enable quick, on-site assembly, making it a more affordable option for homeowners.

This SL-602 design features a traditional craftsman style with gable rooflines, wooden porch columns, and a mix of lap and shake siding. The symmetrical façade and inviting porch create a cozy, timeless feel. Its versatile design allows for rotation or reversal to fit various lot layouts making it adaptable for different properties. Thoughtful color, material selections, and detailing help the ADU blend seamlessly with the primary residence and surrounding neighborhood, adding both style and cohesion.

Ultimately, the SL-602 combines affordability, sustainability, and adaptability, offering a practical housing solution for those wishing to downsize, house family members, or generate rental income, all while maintaining independence and a high quality of life.